Haus Weber
Vierfach Einfamilienhaus
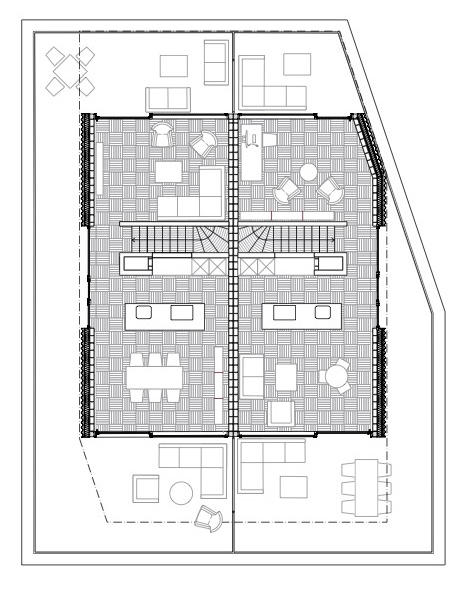
Ein dreigeschossiges Mehrfamilienhaus mit vier Wohnungen, von denen jede wie ein Einfamilienhaus funktioniert: Parkplatz vor dem Eingang, direkter Wohnungszugang von aussen, eigenes Treppenhaus und Grundrissorganisation aufgeteilt auf ein Schlafgeschoss und ein Wohngeschoss. Es entsteht das mittlere  kompakte Geschoss mit allen Schlafzimmern und jeweils ein Erd- und ein Attikageschoss mit grosszügigen Wohn-Esszimmern mit Aussenzugang.
Daten
2018 - 2021
Steinhausen, Zug
Bauherrschaft
Privat
Zusammenarbeit
Baumanagement: R. FUCHS Partner AG
Leistungen Taonius AG
Entwurf, Projektierung, Bewilligungsverfahren, Ausschreibungs- und Ausführungsplanung
Bilder
Oliver Dubuis
Yoichi Iwamoto
Mehrfamilienhaus Haus Weber, Steinhausen ZG – Aussenansicht Fassade, 2021
Mehrfamilienhaus Haus Weber, Steinhausen ZG – Ansicht Eingangsbereich
Mehrfamilienhaus Haus Weber – Detailansicht Fassade und Balkon
Mehrfamilienhaus Haus Weber, Steinhausen ZG – Aussenansicht Nacht
Mehrfamilienhaus Haus Weber – Innenraum Wohngeschoss mit grosszügigem Ausblick
Mehrfamilienhaus Haus Weber – Treppe Innenraum
Mehrfamilienhaus Haus Weber – Wohnzimmer mit Aussenbereich
Grundriss Erdgeschoss Haus Weber, Steinhausen ZG – Taonius AG
Grundriss Obergeschoss Haus Weber, Steinhausen ZG – Taonius AG
Grundriss Dachgeschoss / Attikageschoss Haus Weber – Taonius AG
Taonius AG
Kontakt